Programme : campus BTS informatique / commerce
Maître d’ouvrage : GEC du pays de Vernon
Equipe : Bimopsi + Lexis
Surface : 1 400 m²
Budget : 1 360 000 € ht
Mission : base + dqe + opc
Avancement : livré en avril 2023
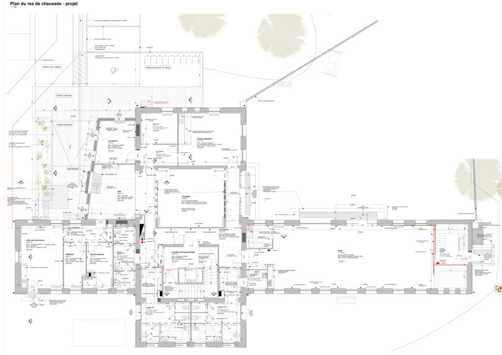
Le défi de ce projet a été de transformer l’EHPAD des sœurs Bleues en établissement scolaire post Bac spécialisé dans la formation des métiers de l’informatique. Ce changement de destination est passé par la réalisation d’un extension symbolisant le renouveau de ce bâtiment.
Réalisation du programme avec le maître d’ouvrage
La programmation a été réalisée par l’agence afin d’accompagner le maître d’ouvrage dans ses décisions. Un travail d’écoute et d’analyse ont permis d’aboutir à l’établissement d’un programme cohérent avec le bâtiment acquis par le GEC du pays de Vernon.
La réhabilitation globale rentre dans une démarche durable afin de limiter les dépenses énergétiques tout en respectant une économie de projet. Un curage complet du bâtiment a été réalisé afin d’entreprendre cette transition de fonction. Travailler sur un bâtiment existant implique des adaptations pendant le chantier car le curage de celui-ci met à jour une structure avec la quelle nous devons composer, pour conserver les attentes programmatiques du maître d’ouvrage tout en restant cohérent avec le budget initial.
L’extension accueille le hall d’entrée et le secrétariat de l’établissement scolaire. Il est bordé par une jardinière en béton blanc et un parvis. Nous avons donné une forme volontairement désaxé pour casser la forme orthogonale du bâtiment originel.
« une écriture architecturale sobre »
Des matériaux sobres et contemporains viennent composer une nouvelle façade en dialogue avec le bâtiment existant. La façade est bardage Eternit blanc LT avec une alternance de pose verticale et horizontale.
(*) œuvre créée sur l’initiative de Opus Project, sous sa direction et son nom, et dans laquelle la contribution personnelle des divers auteurs participant à son élaboration se fond dans l’ensemble en vue duquel elle est conçue, sans qu’il soit possible d’attribuer à chacun d’eux un droit distinct.
